广晟服务热线:
13573670168
0536-6808888
首页
星空官方web版入口
公司简介
公司场景
精品展示
一体化污水处理设备
生活污水处理设备
污水处理成套设备
屠宰污水处理设备
MBR污水处理设备
工业污水处理设备
洗涤厂废水处理设备
医院污水处理设备
矿井污水处理设备
塑料、餐消污水处理设备
气浮机设备
食品污水处理设备
带式压滤机
泥浆处理设备
合作案例
最新资讯
公司新闻
行业知识
荣誉资质
售后服务
售后服务
销售网络
联系广晟
网站首页
星空官方web版入口
精品展示
合作案例
最新资讯
荣誉资质
售后服务
联系广晟
广晟环保
网站首页
星空官方web版入口
星空官方web版入口
合作案例
最新资讯
荣誉资质
售后服务
联系方式
最新资讯
行业知识
公司新闻
最新资讯
行业知识
公司新闻
生活污水处理一体化设备
生活污水处理一体化设备是为用户提供一种可埋地式设置有机污水处理设备,其设备采用先进工艺和生产制造技术。该设备以碳钢为主要制作材料。其主要目的是使生活污水、工业有机污水经该设备处理后达到规定的排放标准。
7-8
2020
>
污水一体化设备工艺采用
污水一体化设备采用目前较为成熟的生化处理技术接触氧化法,主要是对生活污水和与之相类似的工业有机污水的处理,采用一体化设计,占地少,运行费用低,配备全自动控制系统,操作维护方便。
7-8
2020
>
一体化农村水处理设备处理过程
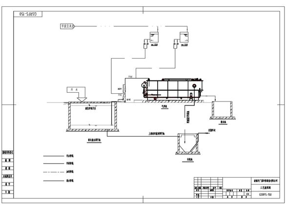
一体化农村水处理设备,调节池中污水由提升泵提升进入一体化污水处理设备,污水在设备中经过水解酸化、生物接触氧化、沉淀等处理过程,出水后进入过滤器,经过滤后消毒,出水达标排用于绿化。
7-8
2020
>
农村污水处理技术工艺
农村污水处理经格栅后进入水解酸化池(调节池)进行水质水量调节出水经提升泵提升至厌氧生物池(兼氧池A),出水进入一级接触氧化池(0)生化后再进入二级接触氧化池(0)继续生化后,进入沉淀池进行固液分离后经加入消毒.剂后进入接触消毒池,经一定的接触时间后消毒出水即可达标排放。
7-8
2020
>
农村小型生活污水处理设备
农村小型生活污水处理设备二级生物接触氧化处理工艺,均采用推流式生物接触氧化,其处理效果优于完全混合式或二级串联完全混合式生物接触氧化池。并比活性污泥池体积小,对水质的适应性强,耐冲击负荷性能好,出水水质稳定,不会产生污泥膨胀。
7-8
2020
>
小型生活污水处理成套设备
小型生活污水处理成套设备根据前述污水水质水量和排放要求,结合污水特征。本次生化系统将接触氧化池、沉淀池、污泥池、风机房、消毒出水池等部分合成一体,其各部分具有相应功能,部分之间相互连接,最终出水达标。
7-8
2020
>
生活污水一体化处理设备结构
生活污水一体化设备采用目前较为成熟的生化处理技术接触氧化法,主要是对生活污水和与之相类似的工业有机污水的处理。使接触氧化法和活性污泥法有效的结合起来,同时具备两者的优点,并克服两者的缺点,使污水处理水平进一步提高
7-8
2020
>
一体化高效污水处理设备
一体化高效污水处理设备是一种模块化的高效污水生物处理设备,是一种以生物膜为净化主体的污水生物处理系统,充分发挥了厌氧生物滤池、接触氧化床等生物膜反应器具有的生物密度大、耐污能力强、动力消耗低、操作运行稳定、维护方便的特点,使得该系统具有很广的应用前景和推广价值。
7-8
2020
>
总计1975页 [
1
1722
1723
1724
1725
1726
1727
1728
1729
1730
1975
]
上一页
下一页
第1726页
返回首页
电话
产品中心
< a href=" ">在线客服
开云(中国)Kaiyun·体育官方网站-登录入口
|
星空体育在线网站
|
九游平台
|
欧亿
|
星空体育·(中国)官方网站
|
华体会在线
|
乐鱼平台
|
MK官方网站
|
华体会官方端网站登录入口
|